Key features
- Steel portal frame construction
- Part brick, part profile metal clad elevations
- 2.7m eaves to the underside of the haunch
- 3.7m clear internal height
- 1 no. electric up and over level access loading doors
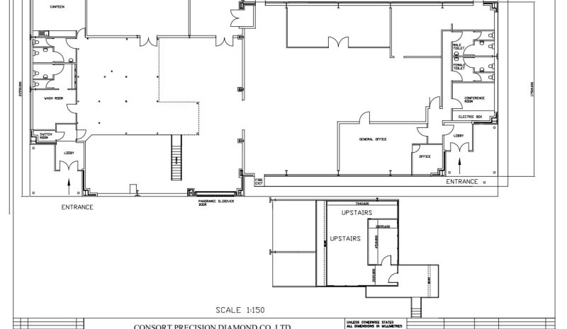
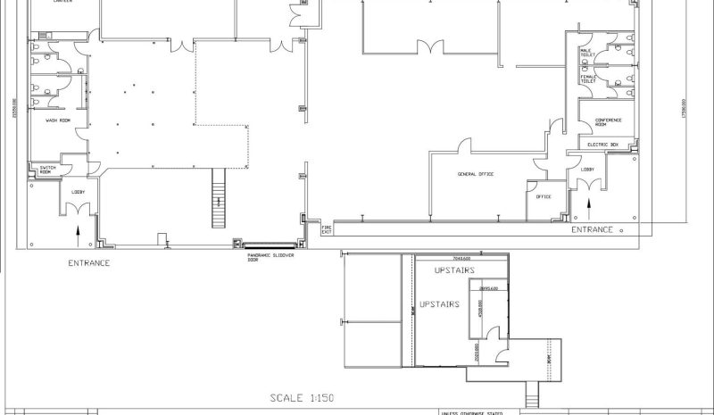
- Ground floor offices
- Male and Female WC's
- Car parking for 30 vehicles
- Unit is available by way of a sub-lease or assignment
Property description
To Let - Detached Industrial Warehouse Unit
10,104 sq ft / 938 sq m
The property is available by way of sublease, assignment.
Copy of existing lease is available upon request.
Location
Unit A1-A2, Tir Llwyd Industrial Estate, Rhyl, Wales, LL18 5JA
Thank You
Your request has been received. A member of the team will be in touch.








